BTYX型行车式吸泥机
技术参数表
BTYX型行车式吸泥机
一.用途
行车式吸泥机适用于污水处理厂平流式沉淀地。其主要功能是将沉降在地底的污泥刮集至吸泥管管口,再 通过吸管排出沉淀池。运行形式是边运行边吸泥。
二、型号说明
三、特点:
1,工作桥采用桁架结构,简洁、美观、轻巧 2,维护简单方便,运行费用低。 3.动减速机多种选择:采用轴装式,结构简单素澳,检修方便:采用摆线针轮减速机,价廉物 美、传动效率高,行走轮采用钢轮 4.系统控制柜采用户外型,安全可靠,可随机控制和远程控制。输电装置可以根据用户要求采用 电缆挂架(标准配置),滑触线、电缆滚简等不同型式。 设备的尺寸、材质及其他配可根据用户需求而定
四、构造及工作过程
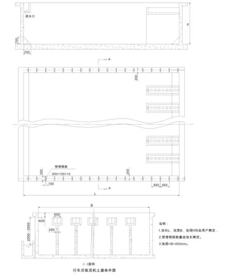
行车式吸泥机根据吸泥形式的区别可以分成泵吸混机和虹吸泥机两种形式 行车式泵吸泥机由工作桥,吸泥管、集泥板、排泥管,液下污混,驱动机构、电控箱等主件和出水三角 板等附件(可选)组成 行车式虹吸泥机由工作桥,吸混管、集泥板,抽真空系统(真空),驱动机构、电控箱等主件和出水三角 板等附件(可选)组成 行车式(虹)吸泥机由四点支撑行走大横在平流式沉淀地上,双边驱动,地两边均铺设轨,从地的一 端运行到池子的另一端,边运行边吸泥。由两端行程开关控制其往复运行。运行和停车时间根据污泥量由时 继电器控制 设备外形图、技术参数和土建条件尺寸见图表
BTYHX型行车式吸泥机
技术参数表:
BTYHX型行车式吸泥机
