一、用途
BFD浮筒式水器是种污水处理的专用设备,适用于各种间歇循环活性污泥法污水处理系统,在排水阶段,可将已经处理的上清液自表面搬出也可安装在“调节一沉池”内,将沉淀后的上清液以恒定流量进入生物反应池,达到处理效果良好稳定的目的BFD浮集式尾水器使用于处理量小于200m/h的小型循环式活性污泥处理系统
二、型号说明
三、特点
1.构造简单,维修方便
2.不需动力,靠浮力与自重升降
3.排水量可调操作简单
4.容易实现自动控制
5.眼气时厚简升起防止污泥流入排水管
四、构造及工作过程
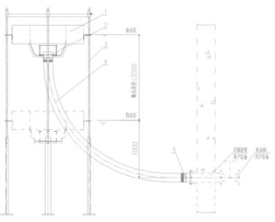
BFD浮简式尾水器由浮筒,导水口,滑杆架出水软管,出水竹节法兰等部件组成,不需要动力,在气和沉淀阶段,水器浮于水面,处以待机状态其外口软管中所积清水形成水封,避免脏水进入外管搬水开始,电动阀门打开,池中的上清夜被排除,随着水位的下降,浮筒在支架的导杆中徐徐向下滑动当水位降到zui低水位时,关闭电动阀门,排水结束,设备外形和技术参数见图表
BFD型浮筒式滗水器
浮簧 2.导水口 3.滑竿架 4.出水软管 5.竹参法兰 BFD浮式水器外形图
五、技术参数表
BFD浮简式水器的土建条件图通常视实际情况面定,所以设计时请与我公司联系,由我公司 设计人员根据实际情况,给出具体的土建条件图
